15 MANOR COURT, COUPAR ANGUS ROAD, BLAIRGOWRIE, PH10 6JJ

For saleApartmentsFlatPerth and KinrossPH10 6JJThe Mews House, 15 Manor Ct, Coupar Angus Rd, Blairgowrie PH10 6JJ, UK

15 MANOR COURT, COUPAR ANGUS ROAD, BLAIRGOWRIE, PH10 6JJ

The Mews House, 15 Manor Ct, Coupar Angus Rd, Blairgowrie PH10 6JJ, UK
  • 2 beds
  • 1 bath
£150,000Offers over
REQUEST INFO Request info

Basics

Description

  • Description:

    Miller Gerrard are delighted to bring to the market 15 Manor Court, a most attractive first floor flat situated in a desirable, established development within a short walk of local shops and amenities.

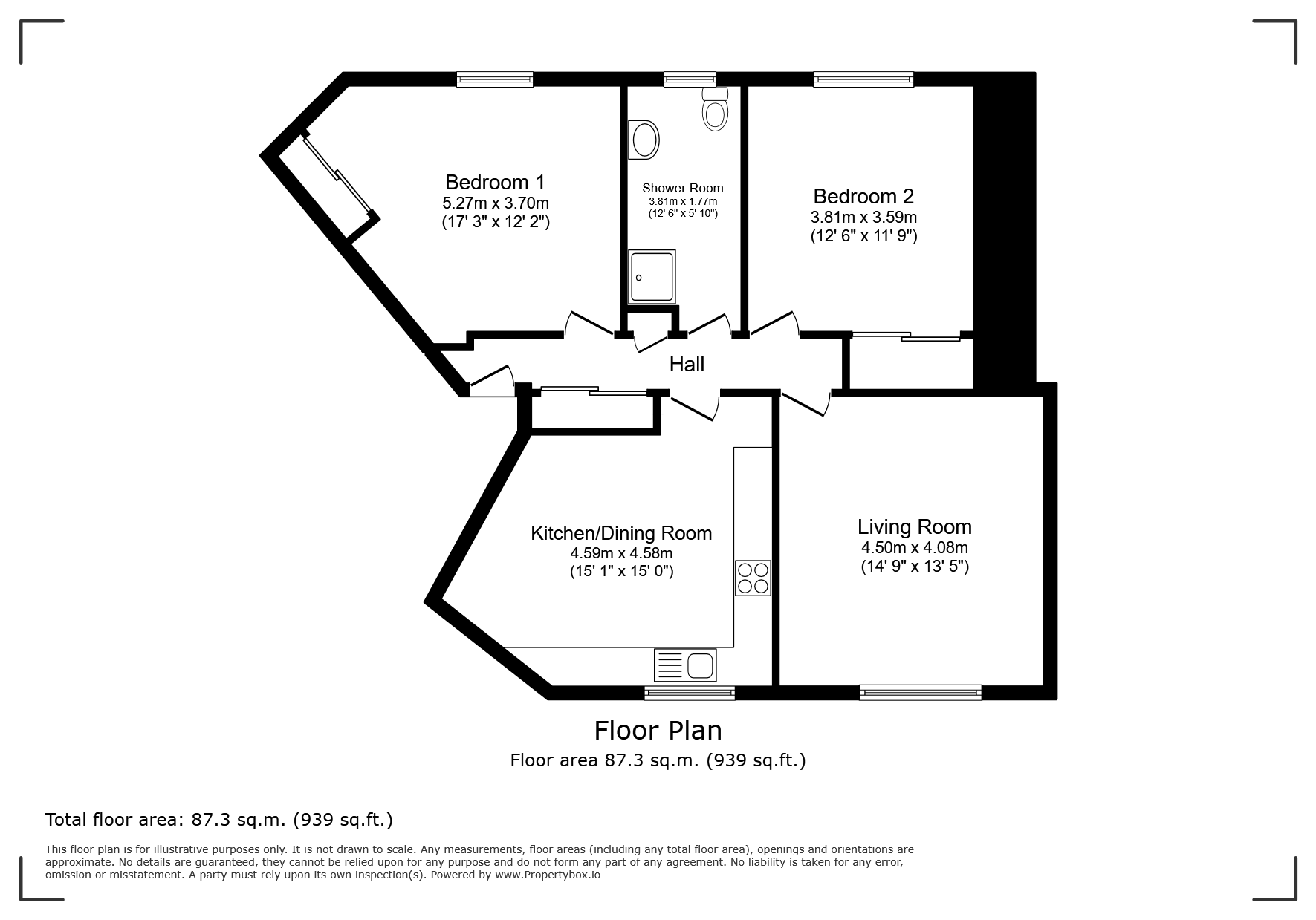
    The accommodation is on the first floor and is entered by a secure door entry system. The living room is spacious, bright and with a large picture window to the front. The breakfasting kitchen is also front facing with plenty of room for a dining table. Both double bedrooms are of good size and overlook the rear carpark.

    The property benefits from a designated parking space to the rear of the development and there are well maintained gardens, gas central heating and double glazing.

    The country town of Blairgowrie is conveniently situated within approximately 30 minutes by car of both the cities of Perth and Dundee with their onward rail and motorway connections.  Amenities in the town include shops,  supermarkets, senior and primary schools, recreation centre with swimming pool, cottage hospital, health centres, dental surgery and library.  There are thriving sports clubs, cultural organisations and several golf  courses locally.  The beautiful Perthshire countryside is virtually on the doorstep with a wide variety of walks around Blairgowrie and more adventurous routes available in Strathardle, Glenshee and Glenisla, approximately 30 minutes by car.

     

     

Location

Documents

  • Documents:
    HOME REPORT
    • HR2025110060PACK-15-Manor-Court-Coupar-Angus-Road-Blairgowrie.pdf
    • 1.34 MB
    EPC
    • PER-2025-11-0060-EPC.pdf
    • 110.71 KB
    SCHEDULE
    • SCHEDULE-A3-PUBLISHER-BOOKLET-NEW.pdf
    • 1.40 MB

Floor Plans

Enquire About This Home

Phone
By clicking the «REQUEST INFO» button you agree to the Terms of Use and Privacy Policy

Property Walkthrough

Share this property

Copy

Or share with

Powered by Estatik